
1/7




+2
more
£100K
Size not specified
£100K
High Grange Farm
Size not specified
Development Land in High Grange Farm for Sale - £100,000
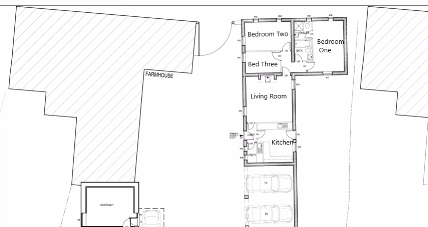
Addisons Chartered Surveyors are delighted to bring to the market this exciting development opportunity in the attractive village of Hett. The development site is situated within the village of Hett, nestled in an existing residential street. Hett is a picturesque vill...
Development Land in High Grange Farm for Sale - £100,000
Size not specified
development
available
freehold
Description
Addisons Chartered Surveyors are delighted to bring to the market this exciting development opportunity in the attractive village of Hett. The development site is situated within the village of Hett, nestled in an existing residential street. Hett is a picturesque vill...
Contact Agent
Addisons Chartered Surveyors, Barnard Castle
Smart Picks — Professionals Relevant to This Land
Based on this property's key features, here are the specialists you may want to consult as part of your due diligence: land agents and rics surveyors.
Location
High Grange Farm

